浙江衢州15.3米×14.8米简欧三层别墅 | 建筑师作品

发表于 讨论求助 2022-03-27 12:54:38

↑↑上这里就够了,找齐所有建房资源:图纸、施工队、建房材料


项目概况:

占地尺寸:开间15.34米×进深14.84米

建筑面积:411.1平方米 

建筑风格:简欧风格

建筑结构:砖混结构

参考造价:35万(不含外墙装饰及管线)

设  计  师:杭州田口建筑设计工作室—时工


此项目位于浙江衢州,屋主在杭州从商,近几年杭州发展迅速,不仅迎来了G20,接下来还有亚运会,政府大兴土木,但是空气质量却越来越差,蓝天都变成了奢求。但屋主老家的环境非常好,虽然全家都在杭州定居,但老家还保留着宅基地。逢年过节逃离城市,去乡下“度个假”成了一个非常不错的选择。



客户要求:

屋主希望房子的外观要新颖,但放在乡下不能突兀,且比例要恰当。屋主原先从事室内设计,审美非常好。

九十年代那场大雨淹到老宅子的室内,所以新建房子室内地面抬高了2.1米。卧室不需要很多,两个小套房加两个大套房即可。一层公共区域尽量要大,卧室私密性要好。

—— 鸟瞰展示 ——

—— 立面展示 ——

南立面

东立面

北立面

西立面

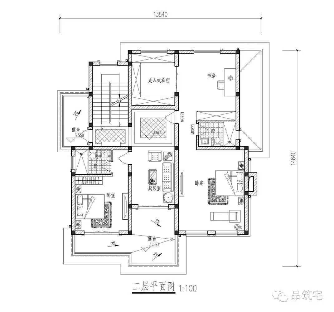
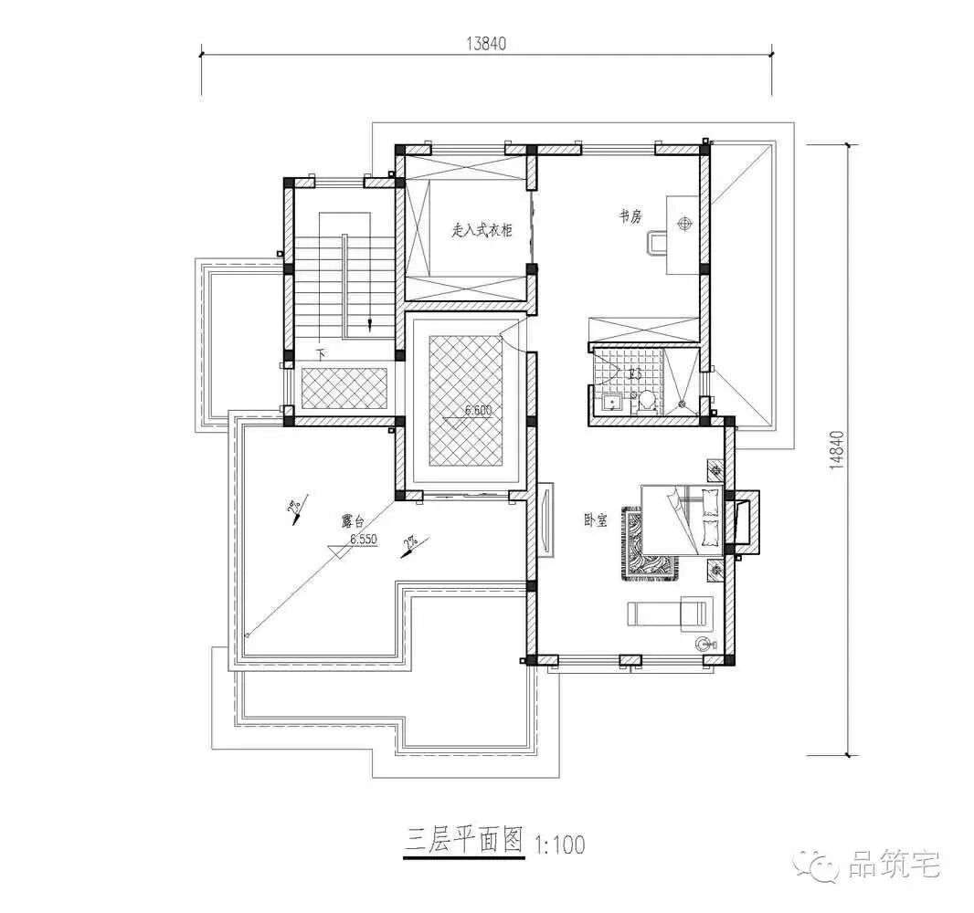
—— 以下是平面图 ——

一层布局玄关带背景,客厅连餐厅,餐厅靠近厨房,一个小套房及公卫,一个门廊一个阳台;

二层布局一个大套房(含卧室、书房、走入式衣柜和卫生间),一个小套房,一个起居厅,两个露台;

三层布局:一个大套房(含卧室、书房、走入式衣柜和卫生间),一个大露台;

▲屋顶平面

▲剖面图

户型亮点:门前大门厅连走廊,避免夏日阳光直接照进室内,而且方便雨天开门。客厅玄关与其余空间做了高差处理,使室内空间不显得那么呆板,玄关连着中转厅,客厅与餐厅中间的局部镂空,室内空间相互渗透,而不是一眼就到底。一层总体动静分区,老人卧室远离客厅,且私密性好。二层三层都是套房,布局上层层收进,整个外观错落有致。

(完)


推荐阅读:↓↓↓点击下方标题,阅读精彩文章


  1. 新中式别墅再度兴起!

  2. 一栋建给未来的现代别墅,超有范!

  3. 千岛湖畔11.3×11.5米三层简欧别墅

  4. 四合院—你不知道的中国建筑文化!

  5. 12x8.5米三层简欧,25万经济实用农村别墅户型!

  6. 盖一套新中式四合院别墅,wuli气质不一般!

  7. 新农村11米×8.5米二层欧式别墅,15万造好老百姓的房子!


您的"点赞"与"转发"是对小编工作的最大鼓励与支持!欢迎您通过文章底部留言

↓↓↓

定制设计购买图纸!请拨打电话:18701880638 杨工,微信同号

咨询、建议、吐槽、投稿、加群……请加“小筑”微信:lsy58330


红光小区
发表
26906人 签到看排名